切换到宽版
  • 8阅读
  • 1回复

[奇观]烟台八角湾游客服务中心 / 大椽设计[44P] [复制链接]

上一主题 下一主题
在线jjybzxw

UID: 551814

 

发帖
208195
金币
581658
道行
2005
原创
2437
奖券
3180
斑龄
40
道券
1167
获奖
0
座驾
设备
摄影级
在线时间: 45835(小时)
注册时间: 2008-10-01
最后登录: 2025-12-05
只看楼主 倒序阅读 使用道具 楼主  发表于: 昨天 09:49


© AUROR 视觉
面朝大海,背靠会展中心,在两个巨型尺度的面前,任何形式化的表现都不是最合适的选择。我们将基地的正负零标高处理成一道"地平线"广场,承载着整个会展中心人流和市民休闲活动,让海极致舒展开来,直至无限。

▲一道"地平线"© RudyKu

▲建设现场© 大椽设计

▲巨构下的服务中心© RudyKu

▲拾阶而上© RudyKu

▲正在运营的咖啡厅© RudyKu

▲-1F 平台© RudyKu
折叠自然
交错的平台,是对场地的抽象化回应

▲会展公园整体性设计© 大椽设计+AECOM

▲清晨的服务中心© AUROR 视觉

▲会展公园现状(左)/场地高差形成的断层(右)© 大椽设计

▲市民活动日常© RudyKu
服务中心的大部分功能"藏"在地下,屋顶与地面相连并覆上绿植,倾斜屋面、下沉庭院与多层标高构架出一套连贯的"折叠"空间系统,也带来极强适应性。抬升的平台成为落日观赏点与集会场所,其下方则形成遮阳休憩长廊。

▲过程草图及空间模型© 大椽设计

▲"折叠"空间系统© RudyKu

▲望向大海的通廊© AUROR 视觉

▲外挑看海平台© RudyKu

▲平台下的休憩空间© AUROR 视觉

▲入口标识© AUROR 视觉

▲展览/市集广场© AUROR 视觉
咨询中心位于平台的核心区,提供售票、咨询一站式服务,结合外广场是空间的焦点与人群集散地。平台外可融合市集、表演、休闲、观景等多种日常活动。

▲三重空间界面© 大椽设计

▲滨海走廊© RudyKu

▲陆海之间的温柔过渡© RudyKu

▲零标高处© AUROR 视觉
空间强调的几何纯粹性更是赋予建筑足够的力度,让它具有明晰可辨的视觉特征,彰显其作为城市"主要元素"应有的公共性。

▲公共界面© RudyKu

▲向大海的延展© AUROR 视觉
环境韧性
连续性的尺度层次,界限模糊、允许市民自由穿行

▲活动模式弹性空间分析© 大椽设计

▲11 月 2 日任贤齐演唱会时期,服务中心的承压 © RudyKu
为优化平台开口形式对行为的影响,设计对比了全覆土、大峡谷及局部下沉庭院等策略。局部下沉庭院在扩大竖向交通核心的同时,保证功能空间享有中庭与海景的双重景观。游客中心则强化竖向连接与视野通达。

▲平台不同开口方案比对© 大椽设计

▲入口处与会展中心的联系© RudyKu

▲快速引导和分散人流的路径系统© AUROR 视觉

▲提供采光的三角形洞口© AUROR 视觉

▲自由通达的交通© RudyKu
海岸诗意
镀锌板与混凝土并置的自然逻辑
建筑统一采用清水混凝土结构,但通过不同材质的细腻搭配来区分空间界面:镀锌板天花板、清水混凝土墙面与石材地面。这些材质彼此协调,共同营造出连贯质朴的空间氛围。

▲波光粼粼的镀锌板© AUROR 视觉
在直面海洋的环境中,材料必须耐用,其质感也应与环境呼应。因此我们选择了镀锌板:它的金属光泽与冷灰色调,能与粗粝的混凝土形成鲜明又协调的对比。混凝土沉稳地锚固大地,镀锌板则轻巧地反射着天光与海影。这种材质的对比,既清晰地展现了构造逻辑,又暗喻了海岸地貌中礁石与水流并置的自然逻辑。

▲台阶次入口© AUROR 视觉
镀锌板表面特意选用大花纹肌理,使其在不同时段的光线下呈现出波光粼粼的视觉效果,犹如将海面的波纹延伸至室内顶棚。随着一日之中光线的流转,天花板仿佛成为海洋的延续,令极简的几何现代性空间突然拥有了温度与叙事感。

▲天花板成了海洋的延续© RudyKu
空间重构
自然、文化与日常
项目于2023年6月启动,室内设计围绕三个核心展开:海边的自然性、城市的文化性与生活的日常性。为精准服务日常市民、会展游客与水上运动爱好者这三类客群,我们梳理出如厕、就餐、休憩、办公、展示六大核心功能,并重点强化"驿站"的公共服务与"展陈"板块。

▲功能调整© 大椽设计

▲室内望海© AUROR 视觉
通过更衣区与办公区的位置置换,优化内部流线。释放出的原办公区域被转为商业用途,有效提升了空间活力。同时,将行政管理功能整合进服务大厅,进一步集约了空间。

▲空间优化© 大椽设计

▲虫鸣探秘活体自然博物馆© RudyKu

▲咨询中心/艺术餐厅室内效果图© 大椽设计

▲咖啡厅© 大椽设计
后记
滨海沿线日常活跃着骑行、运动、休闲的市民,却长期缺乏与之匹配的休憩与服务节点。"一道地平线"通过环境、空间的多重维度,创造人与大海接触的机会,塑造共享、开放、活跃的城市阳台,也是公共建筑对市民社会最深刻的回应。

▲傍晚海边活动的市民© RudyKu
项目图纸

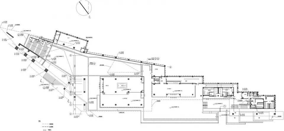
▲总图© 大椽设计

▲组合平面© 大椽设计
▲组合立面图© 大椽设计

▲节点细部© 大椽设计
项目类型:新建建筑
项目地点:山东烟台经济开发区(烟台黄渤海新区海滨路与贵阳大街交界处)
设计单位:上海大椽建筑设计事务所
主创建筑师:洪东涛
设计团队完整名单:洪东涛、唐坦、吴嘉玮、应涛、红华、喻华杰、王泰昊
业主:烟台黄渤海新区建设交通局
造价:4100万元(总);0.83万元/㎡(单位面积造价)
设计时间:2021年06月-2025年05月
建设时间:2025年9月竣工
建筑面积:4911.23㎡(计容建筑面积2224.50㎡)
用地面积:17500㎡
规划+景观:AECOM
山庄提示: 道行不够,道券不够?---☆点此充值☆
 
在线jjybzxw

UID: 551814


发帖
208195
金币
581658
道行
2005
原创
2437
奖券
3180
斑龄
40
道券
1167
获奖
0
座驾
设备
摄影级
在线时间: 45835(小时)
注册时间: 2008-10-01
最后登录: 2025-12-05
只看该作者 沙发  发表于: 昨天 09:49
烟台“一道地平线”会展公园服务中心:滨海公共空间的诗意重构

位于山东烟台黄渤海新区的会展公园服务中心,由上海大椽建筑设计事务所联合AECOM打造,于2025年9月竣工。该项目以“一道地平线”为核心理念,在面朝大海、背靠巨型会展中心的特殊场域中,通过折叠自然、环境韧性与海岸诗意的多维设计策略,创造出一个开放共享、功能复合的城市阳台。它不仅是服务设施,更是连接陆海、融合市民生活与城市事件的公共媒介。

---

一、项目概况

| 项目信息 | 内容 |
|--------|------|
| 项目名称 | 会展公园服务中心(“一道地平线”) |
| 项目类型 | 新建建筑 |
| 项目地点 | 山东烟台经济开发区,海滨路与贵阳大街交界处 |
| 设计单位 | 上海大椽建筑设计事务所 |
| 主创建筑师 | 洪东涛 |
| 设计团队 | 洪东涛、唐坦、吴嘉玮、应涛、红华、喻华杰、王泰昊 |
| 规划+景观 | AECOM |
| 业主单位 | 烟台黄渤海新区建设交通局 |
| 总造价 | 4100万元(约0.83万元/㎡) |
| 建筑面积 | 4911.23㎡(计容建筑面积2224.50㎡) |
| 用地面积 | 17500㎡ |
| 设计时间 | 2021年6月 – 2025年5月 |
| 建设时间 | 2025年9月竣工 |

---

二、设计理念解析

1. “地平线”广场:消解尺度冲突的公共界面

基地面临两大挑战:
- 北侧为体量庞大的会展中心;
- 南侧直面开阔海洋。

在如此悬殊的“巨构—自然”之间,任何具象化的建筑形式都易显突兀。设计师提出将正负零标高处理成一道“地平线”广场,作为过渡与承载空间:

- ✅ 人流集散:承接会展中心大型活动的人流疏散;
- ✅ 市民休闲:提供日常散步、观海、休憩的开放平台;
- ✅ 视觉延展:弱化建筑边界,让视线从城市平稳过渡至大海,实现“让海极致舒展开来,直至无限”。

> ▲ 图像支持:© RudyKu《一道"地平线"》展现了平坦延展的屋顶平台与远处海平面融为一体的效果。

---

2. 折叠自然:多层次空间系统的建构

面对场地原有高差形成的断层,“折叠”成为回应地形的核心逻辑。通过倾斜屋面、下沉庭院、多层标高构建出一套立体而连贯的空间系统:

空间结构特征:
| 层级 | 功能与体验 |
|------|-----------|
| +0 标高(地平线层) | 屋顶绿化平台,市民可自由进入,是落日观赏点、小型集会场所; |
| ±0 入口层 | 主入口通廊,连接会展中心与滨海走廊; |
| -1F 平台 | 下沉庭院,设置咖啡厅、展览/市集广场等功能,形成遮阳避风的半室外空间; |
| 地下主体 | 服务中心主要功能“藏”于地下,包括咨询中心、更衣室、办公区等,减少对景观的压迫。 |

> ▲ 图像支持:© RudyKu《拾阶而上》《平台下的休憩空间》清晰展示台阶引导人流逐级下降至内院,《“折叠”空间系统》模型图揭示空间组织逻辑。

设计优势:
- 实现“上人下用”,最大化保留地面开放性;
- 创造丰富的空间层次与光影变化;
- 提升应对极端天气(如强风、暴雨)的适应性。

---

3. 环境韧性:弹性与可达性的双重保障

项目需兼顾日常市民使用与大型会展承压两种状态。为此,设计强调连续性尺度与模糊界限:

弹性空间设计:
- 外广场可融合多种活动:市集、表演、休闲、观景等灵活嵌入;
- 路径系统高效分流:在任贤齐演唱会期间(11月2日),服务中心成功疏导大量人流,验证其交通组织能力;
- 竖向连接强化:局部下沉庭院扩大交通核心,提升上下通行效率。

自由通达策略:
- 多个次入口分布于不同标高,便于从各个方向接入;
- 三角形采光洞口引入自然光,改善地下空间品质;
- 滨海走廊无缝衔接,形成沿岸慢行系统的一部分。

> ▲ 图像支持:© AUROR 视觉《快速引导和分散人流的路径系统》《自由通达的交通》体现空间流动性。

---

4. 海岸诗意:材料叙事中的自然隐喻

建筑采用极简几何语言,材质选择则充满诗意与象征意义:

材质构成:
| 部位 | 材料 | 设计意图 |
|------|------|----------|
| 结构主体 | 清水混凝土 | 表现粗粝质感,锚固大地,象征稳定与力量; |
| 天花板 | 镀锌板(带大花纹肌理) | 反射天光海影,呈现波光粼粼效果; |
| 地面铺装 | 石材 | 耐久实用,增强步行舒适感。 |

材料哲学:
> “混凝土沉稳地锚固大地,镀锌板则轻巧地反射着天光与海影。”  
> —— 这种对比不仅展现构造逻辑,更暗喻海岸地貌中礁石与水流并置的自然秩序。

特别的是,镀锌板表面的大花纹肌理使其在不同时段光线照射下产生动态光影,仿佛将海面波纹延伸至室内顶棚。随着日照角度变化,天花板宛如“成了海洋的延续”,为空间注入温度与叙事感。

> ▲ 图像支持:© AUROR 视觉《波光粼粼的镀锌板》《天花板成了海洋的延续》直观呈现这一诗意效果。

---

5. 空间重构:服务于三类人群的功能优化

项目室内设计围绕三大核心展开:
- 海边的自然性
- 城市的公共性
- 生活的日常性

针对三大客群进行精准服务:

| 客群 | 需求 | 功能响应 |
|------|------|-----------|
| 市民 | 休憩、如厕、观景 | 设置咖啡厅、长廊座椅、无障碍通道; |
| 会展游客 | 咨询、购票、集散 | 咨询中心位于平台核心区,结合外广场形成焦点; |
| 水上运动爱好者 | 更衣、储物、补给 | 更衣区靠近滨海入口,动线便捷。 |

空间优化措施:
- 将原办公区置换为商业空间,释放活力;
- 行政管理功能整合进服务大厅,提升集约度;
- 新增“虫鸣探秘活体自然博物馆”等文化展陈内容,丰富体验维度。

> ▲ 图像支持:© 大椽设计《功能调整》《空间优化》图纸展示布局演变过程。

---

三、社会价值与城市意义

后记中的深层回应
> “滨海沿线日常活跃着骑行、运动、休闲的市民,却长期缺乏与之匹配的休憩与服务节点。”

“一道地平线”的建成,正是对这一城市痛点的深刻回应:

- ✅ 填补空白:为滨海慢行系统提供必要的公共服务支撑;
- ✅ 激活边界:将原本被忽视的会展边缘地带转化为城市活力中心;
- ✅ 塑造地标:以纯粹几何形态与材料诗学,成为具有辨识度的城市符号;
- ✅ 促进共享:模糊公私界限,鼓励所有人平等使用。

> ▲ 图像支持:© RudyKu《傍晚海边活动的市民》记录了真实使用场景,印证其公共性成功落地。

---

四、结语:一场关于“公共性”的当代实践

烟台会展公园服务中心不仅仅是一个功能性建筑,更是一次关于城市公共空间本质的探索:

- 它拒绝形式主义,转而追求与自然、城市、人的深层对话;
- 它用“折叠”化解高差,用“地平线”弥合陆海,用“材料”讲述海岸故事;
- 它证明了即使在会展这类仪式性强的空间旁,也能生长出真正属于市民的温柔角落。

正如其所示:“一道地平线”既是物理的平台,也是精神的桥梁——连接个体与城市,当下与永恒。

---

📌 附录:项目图纸概览
- 总图 © 大椽设计
- 组合平面图 © 大椽设计
- 组合立面图 © 大椽设计
- 节点细部图 © 大椽设计

📍 坐标定位:山东烟台黄渤海新区海滨路与贵阳大街交汇处,面向黄海,毗邻烟台国际会展中心。

🌐 推荐参观时间:清晨或黄昏,感受光影在镀锌板上的流动,体验“地平线”与海平面重合的瞬间。
[ 此帖被jjybzxw在2025-12-04 09:51重新编辑 ]
如何不发帖就快速得到金币道行
 
快速回复
限120 字节
认真回复加分,灌水扣分~
 
上一个 下一个