切换到宽版
  • 5阅读
  • 1回复

[奇观]岳阳华菱港旅游码头游客中心 / URBANUS 都市实践建筑设计事务所[36P] [复制链接]

上一主题 下一主题
在线jjybzxw

UID: 551814

 

发帖
199801
金币
520071
道行
2004
原创
2433
奖券
3100
斑龄
39
道券
1134
获奖
0
座驾
设备
摄影级
在线时间: 44365(小时)
注册时间: 2008-10-01
最后登录: 2025-11-05
只看楼主 倒序阅读 使用道具 楼主  发表于: 3小时前


© TAL
2025 年 5 月在湖南岳阳举办了第四届湖南旅游发展大会,这场盛会实现了“办一次会、兴一座城”初心,推动了一批城市更新项目的建设,华菱港旅游码头游客中心便是重点项目之一:它将遗留的两座老码头建筑华丽转型为洞庭湖旅游客船及游艇集散中心,成为岳阳的新地标。

© TAL
2018 年底,岳阳港工业遗址公园正式开放,保留了龙门吊、铁轨、塔吊、仓库架构等工业时代的记忆元素,与历史街区和未来城市共存。生态公园西面洞庭湖,东邻岳阳楼景区、汴河街、洞庭南路风貌区等景点,形成了岳阳历史文化核心区域中最重要的公共空间资源。美中不足的是占据黄金岸线的老港区虽然去工业化非常彻底,但不进行商业开发的遗址公园又过分生态,竟然没有邻近水体的服务设施。虽然这种短板被市民诟病,但人为的规划已很难再在这片拆得干干净净的公园里做任何超越红线的建设,而旅发大会则带来了用城市更新的特殊政策对岳阳港工业遗址公园进行再提升的机遇。

华菱港肌理变化 © URBANUS

岳阳港工业遗址公园与岳阳楼景区关系 © URBANUS

项目场地和慈氏塔关系 © URBANUS
首先破局的是码头又回来了。岳阳楼、洞庭湖、君山岛是构成地方风景的三大要素:楼观湖,湖映楼,湖中有岛,岛点缀湖。楼-湖-岛三者所构成的山水画卷,是一个黄金旅游三角。从岳阳楼到君山岛的水上旅程,是从历史文化到自然风光、从静态观赏到动态体验洞庭的最佳方式,而游客码头是将这三者共同打包的必要基础设施。恰巧在公园中部有一个原先的货运码头,可以很容易改造为一个游艇和游客码头,通过浮桥可以安排 22 个小型游艇泊位与 15 个中型游艇泊位,即使现在航运没有开启,随水波轻晃 U 型浮桥,也已拉满了人们登船遨游洞庭湖的情绪价值。
从码头南岸看项目场地及慈氏塔 © URBANUS
码头需要配套用房,当年拆迁中一个小心思又为码头重建留了个伏笔:垂直于湖的两栋平行的办公楼侥幸没有被拆除,为游客中心获得了改造旧建筑的法理正当性。两栋楼的东侧是社会车辆可到达的岳阳南路,形成了大景区水陆交通的闭环。其东北是一片小山丘,矗立着通高 39 米、八角七级的宋代楼阁式实心砖塔 —— 慈氏塔,它自古就是风高浪急的洞庭湖上航标塔。近期慈氏塔周边通过环境整治,拆除了邻近的民居和围墙,将其与岳阳港工业遗址公园连为一体,重新回到洞庭湖畔。作为全国重点文物保护单位,慈氏塔的建控范围非常大,所幸的是其西南侧建控蓝线落在已有建筑北侧不足 10 米的位置,使改造这两栋建筑变得可行。冥冥之中,这个在古代引导船只进入洞庭湖、靠近岳阳城的重要导航标志,似乎也应该和新建的游客码头有所关联。

慈氏塔 © 肖艳

码头现存二栋废弃小楼与慈氏塔空间关系 © URBANUS

增加架空观景平台连结二栋小楼,下方形成码头入口空间 © URBANUS

项目构成元素 © URBANUS
两栋小楼的首层面积,基本上满足了售票处、等候厅、卫生间等游客中心的功能要求。用一个连接二层和三层的宽台阶将两个建筑连接,既形成了尺度合宜的从马路走向码头的门户,也形成了楼上的配套功能的户外空间,可以坐下来静静观赏洞庭湖的朝晖夕阴、气象万千。

© TAL

© TAL
在春夏之交有梅雨、夏季炎热潮湿的岳阳,户外平台的遮蔽设施非常必要;加之从湖面看码头,原来两栋建筑的轮廓线毫无标志性,这样,用象征着风帆的张拉膜做个棚顶自然而然成为一种选择。

© TAL

© TAL
棚架的结构选型灵感来源于一个偶然的场地观察。在凹进湖岸的码头南壁,遗址公园有一处观景平台,且特意放了一组艺术装置。从这个点去看两栋保留建筑,如果把北侧的一栋中部破掉一点,正好把慈氏塔环报在建筑核心。在此基础上,假若再用拱形天棚把慈氏塔框住,则形成了这个宋代灯塔和当下码头之间跨越时空的对话!

从码头南岸刚透过天棚,形成看慈氏塔的绝佳站点 © URBANUS

© TAL

© TAL
从环境肌理上看,大片的张拉膜会非常刺眼。参考周边街区既有大仓库、又有小民居,起伏的地势又使它们的屋顶鳞次栉比、无序混搭,棚架一方面被设计成连续筒拱,组合起来更像个聚落;另一方面以慈氏塔为核心用放射线起拱,整体外边界投影又基本上控制在原建筑范围内,从而带来四个立面都有变化的轮廓线。在此基础上,通过反复推敲与山体、古塔、岸际等固有环境要素的关系,一个对话历史、拥抱未来的洞庭新地标跃然出现在湖面之上。

© TAL

© TAL
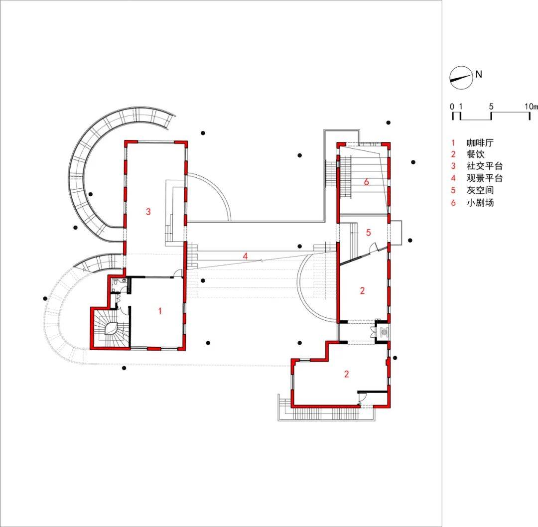
显然,上层丰富和有情调的公共空间和服务设施大大地改变了候船的模式,使等候变成了享受。如何到达上层空间成为了潜在的设计亮点。通过浪漫化消防楼梯,让它们成为建筑剖面的切割刀,把原建筑二、三层朝湖的空间废墟化为公共厅堂,引景入室,又增加了两个可以举办小尺度活动的灰空间。这些空间为这个不大的聚落带来了层出不穷的惊喜。

作为社交平台的南侧临湖灰空间 © URBANUS

作为小剧场的北侧临湖灰空间 © URBANUS
北侧由于受文保线的限制,登楼的行进路径藏在建筑内侧,形成一个小的戏剧空间,更加封闭些。

© TAL

© TAL
南侧不受限,可以自由放纵,在建筑之外放飞两条半圆弧楼梯,可以凭栏眺望南侧的遗址公园和湖面。楼梯二、三层间的休息平台是向湖面敞开的社交空间。

© TAL

© TAL

© TAL

© TAL

© TAL
楼梯和棚架的钢结构,以及加固后的混凝土墙,又带回了所谓的工业风,既有十足的现代感,又和废墟化的老砖墙形成新旧对话,通过新美学带回来了这个片区缺席的工业时代。

© TAL
功能完善的游客中心不仅仅服务于航运,也补齐了在遗址公园缺失的配套功能,同时还带来了展览、展示、活动的可能。它不仅是服务的窗口,本身也是一个旅游景点,循环再利用残留的工业遗产,实现了遗址公园“保留历史、面向未来”的初心,让游客能沉浸式地感受到场地的历史厚重感与时空穿越般的戏剧感。在更高的维度上,这个游客中心也是一个具有强大叙事能力的文化装置,是岳阳城市转型的一个精神象征,一方面提升了市民的自豪感和归属感,另一方面也让游客看到了一个不仅有历史底蕴、更有现代发展眼光的岳阳。

© TAL
更有意义的是,游客中心的设计不仅没有破坏慈氏塔的历史环境,反而通过当下的设计语言,为观赏和理解慈氏塔提供了一个富有深度的视角。它们不再是两个孤立的景点,而是共同构成了一个讲述岳阳湖城一体的空间叙事。同时,这个在地化的关键节点改造,激活了整个片区的活力,并带动了码头遗址公园南部的发展。
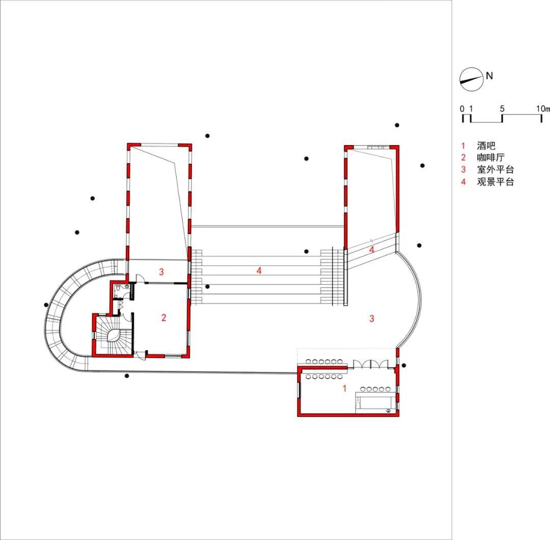
项目图纸

一层平面图 © URBANUS

二层平面图 © URBANUS

三层平面图 © URBANUS

立面图 © URBANUS

剖面图 © URBANUS

模型照片 © URBANUS

模型照片 © URBANUS
项目信息
建筑事务所:URBANUS 都市实践建筑设计事务所
设计时间:2024 年
建设时间:2024 年 - 2025 年
项目地点: 岳阳, 湖南,中国
用地面积:2682 平方米
建筑面积:1624 平方米
室内 & 景观设计:URBANUS 都市实践建筑设计事务所
主持建筑师:王辉
设计团队:郑娜、姚咏梅、孙凡奇、豆勇辉、张富军、李文杰、周翔、王竞飞、卢勇、陈宇、赵萍、张书岩
建设单位:岳阳天下洞庭水上旅游开发有限公司
合作单位:中交武汉港湾工程设计研究院有限公司(施工图)、北京马斯特结构设计事务所有限公司(结构顾问)
施工单位:湖南省第八工程有限公司
摄影:TAL
山庄提示: 道行不够,道券不够?---☆点此充值☆
 
在线jjybzxw

UID: 551814


发帖
199801
金币
520071
道行
2004
原创
2433
奖券
3100
斑龄
39
道券
1134
获奖
0
座驾
设备
摄影级
在线时间: 44365(小时)
注册时间: 2008-10-01
最后登录: 2025-11-05
只看该作者 沙发  发表于: 3小时前
2025年5月在湖南岳阳举办的第四届湖南旅游发展大会,作为全省推动文旅融合、促进区域高质量发展的重大战略举措,将对岳阳城市功能提升与空间重构产生深远影响。其中,华菱港旅游码头游客中心等城市更新项目作为大会重点配套工程,将在政策引导、资金投入、规划设计、产业联动和公众参与等多个维度获得强力推动。以下从五个核心层面系统阐述旅发大会如何赋能此类项目的建设进程:

---

一、顶层设计强化:以“大会引领”构建城市更新战略新格局

第四届湖南旅游发展大会不仅是一场文旅盛会,更是一次以“以会兴城”为导向的城市发展战略升级。岳阳市以此为契机,将华菱港旅游码头游客中心纳入“长江经济带绿色发展示范区”和“洞庭湖生态文化旅游核心区”的双轨规划体系中。

- 大会筹备期间成立的“旅发项目专班”直接统筹跨部门资源,打破交通、住建、文旅、生态等条块分割,实现审批提速、流程优化,为游客中心项目提供“绿色通道”。
- 岳阳市政府已发布《岳阳市城市更新三年行动计划(2023–2025)》,明确将“滨水文旅门户节点”列为优先改造片区,华菱港被定位为“长江岸线城市客厅”,其游客中心成为展示岳阳“江湖交汇、古今辉映”形象的第一窗口。
- 国家发改委批复的“长江国家文化公园(湖南段)”建设项目亦将该区域列为重点实施段落,赋予其国家级文化地标意义。

---

二、资金与投资撬动:多元化融资机制加速项目建设落地

旅发大会带来的政策红利显著提升了项目的吸引力与融资能力,形成“财政主导+市场运作+社会资本参与”的立体化投资格局。

- 湖南省设立专项“旅发大会城市更新基金”,预计向岳阳拨付超20亿元专项资金,其中约3.8亿元定向支持华菱港片区基础设施升级与游客中心建设。
- 引入EOD(生态环境导向开发)模式,通过“环境治理+文旅运营”捆绑开发,吸引中交建、华侨城等央企与文旅集团参与PPP合作,实现“谁投资、谁运营、谁受益”的可持续机制。
- 游客中心建筑设计采用“代建+运营一体化”招标方式,中标单位不仅负责工程建造,还需承担后续五年运营管理责任,确保建设与使用无缝衔接。

---

三、空间重塑与功能复合:打造集“交通集散、文化体验、商业服务”于一体的新型文旅门户

华菱港旅游码头原为工业货运码头,功能单一且与城市割裂。借力旅发大会,该项目正经历从“生产性岸线”向“生活性、生态性、文化性岸线”的根本转型。

- 游客中心设计由湖南省建筑设计院联合MAD建筑事务所共同完成,采用“漂浮之舟”造型,呼应洞庭帆影意象,屋顶设置观江平台与空中花园,形成视觉地标。
- 功能上实现“五合一”整合:① 长江游轮与环洞庭湖水上巴士的枢纽站;② 数字化文旅信息服务中心(含VR导览、智慧票务);③ 非遗展示与文创消费空间(引入君山银针、巴陵戏等本地IP);④ 城市滨江慢行系统起点;⑤ 应急救援与环保监测综合站点。
- 码头后方配套建设“江湖故事馆”,以沉浸式展览讲述岳阳楼记精神、长江航运史与生态保护历程,增强游客文化归属感。

---

四、产业链协同升级:带动周边街区复兴与就业增长

游客中心并非孤立工程,而是激活整个城东滨江片区的城市触媒。旅发大会推动“点—线—面”联动更新,形成文旅驱动型城市再生范式。

- 以游客中心为核心,向南延伸打造“1918历史码头文化街”,修缮老仓库改建为艺术工坊与精品民宿;向东连接琵琶岛湿地公园,开通电瓶接驳环线;向北联动八字门商圈,形成“白天看景、晚上消费”的闭环动线。
- 更新过程中注重原住民安置与利益共享,推行“微改造、精提升”策略,鼓励沿街居民以房屋入股参与商业运营,已有67户签订“共富商铺”协议。
- 预计项目建成后可直接创造就业岗位480个以上,间接带动餐饮、交通、手工艺等相关行业新增就业逾2000人,尤其惠及下岗码头工人转型为导游、船员或文创从业者。

---

五、品牌传播与长效运营:构建“永不落幕”的旅发大会效应

旅发大会虽为期短暂,但其对城市品牌的塑造具有长期溢出效应。华菱港游客中心被设计为“后旅发时代”的持续运营载体,避免“会后闲置”困局。

- 大会期间将在此举办“长江流域港口城市对话论坛”“中国内河旅游码头发展峰会”等高端活动,提升其行业影响力。
- 运营方已与携程、马蜂窝签署战略合作,上线“云游岳阳”数字平台,游客中心成为线下流量入口与数据采集终端。
- 推出“四季有节”品牌活动:春季“江湖诗会”、夏季“夜航洞庭”灯光秀、秋季“渔市文化节”、冬季“候鸟观察营”,确保全年客流稳定。

---

结语:从“旅发大会”到“城市进化”的深层变革

第四届湖南旅游发展大会之于岳阳,不仅是短期的形象展示,更是一场深层次的城市发展理念革新。华菱港旅游码头游客中心的建设,正是这一变革的缩影——它超越了传统基建逻辑,转向以人文关怀为底色、以生态价值为基础、以产业融合为路径的新型城市更新实践。未来,该项目有望成为长江中游工业遗产转型的典范案例,为中国大河流域城市的可持续发展提供“岳阳样本”。

如何不发帖就快速得到金币道行
 
快速回复
限120 字节
认真回复加分,灌水扣分~
 
上一个 下一个