切换到宽版
  • 9阅读
  • 2回复

[奇观]“跳舞的小山” 武汉麓客岛餐厅 / 大料建筑[44P] [复制链接]

上一主题 下一主题
在线jjybzxw

UID: 551814

 

发帖
200714
金币
526513
道行
2004
原创
2433
奖券
3100
斑龄
39
道券
1134
获奖
0
座驾
设备
摄影级
在线时间: 44519(小时)
注册时间: 2008-10-01
最后登录: 2025-11-08
只看楼主 倒序阅读 使用道具 楼主  发表于: 3小时前

23年初,麓湖要在武汉开新盘,我们之前合作过多次,比如成都的一片森林儿童博物馆、伊甸岛建筑、CPI规划,海南的世纪海角商业街、骑楼老街规划等,大家熟门熟路的,也就又做了一个为儿童游乐场配套的餐厅。

树林中的餐厅©朱雨蒙

餐厅外观©朱雨蒙

勇者小屋环抱着儿童游乐场©朱雨蒙

前期策划这个餐厅叫“勇者小屋”,因其周围多是有些难度的娱乐攀爬设施,希望激发孩子们克服困难的勇气之意吧。房子不大,室内不到200平米,但期望能延展出大量的半室外空间,供游人纳凉休息。并且它作为游人进岛的门户,远远就能被看到。

勇者小屋与周边的攀爬设施 ©朱雨蒙

通透的室内空间 ©朱雨蒙

大屋顶下的荫凉空间 ©朱雨蒙

餐厅位于园区的门户位置 ©朱雨蒙

那段时间我总看南宋蒋捷的词,尤爱一些直接直白的表达,比如“在何处,闲游闲玩“;”梦也梦也,梦不到,寒水空流“;”红了樱桃,绿了芭蕉“,总有种说不清的轻快奇异。于是乎,在做这个设计时,多少受些影响,没多想,就想,做一座山——”跳舞的小山“。

跳舞的小山 ©朱雨蒙

而如何让小山跳起舞来呢?想起两张画,一张是马蒂斯在40岁时画的《舞蹈》,另一张是王希孟18岁画的《千里江山图》,试着捕捉其中的生命力和少年意气。造型模仿也好,气韵意会也罢,总之要转化到建筑空间上,多次尝试后,我和徐丹分别画了张画,我用毛笔画了个母题,规律叠加渐变后似树林似山峦似云彩;在这基础上徐丹直接用色块画出了有空间尺度的形体。

Henri Matisse《Dance》(左)&王希孟《千里江山图》(右)©网络

毛笔母题(左)&色块形体(右) ©大料建筑

慢慢的糅合场地、功能、尺度、构造、材料等进来,更重要的是调整视觉符号与身体感受的关系,终于捏出了建筑方案,甚至是两个方案。

第一种用氧化铜板,第二种用实木条,显然,第一种出现了大面积的双曲面造型,过于昂贵了,所以最终以第二种全平面的方案来实施。

两种方案 ©大料建筑

因为是武汉麓客岛最先开放的单体建筑之一,多少要起到门面的作用,所以建筑布局沿着岛的边界微微弯曲展开的同时,建筑高度需要够饱满,透过树林远远在河对岸就可望到。顺着开放的草坪,穿梭林间,慢慢靠近建筑时,“小山”的形态十分突出,吸引着游人一探究竟。

建筑布局弯曲展开 ©朱雨蒙

饱满的建筑形体 ©朱雨蒙

“小山”形态突出 ©朱雨蒙

林间的“小山” ©朱雨蒙

爬上一段草坡,建筑突然完全出现眼前,巨大的实木体量漂浮于地面之上,一座座三角椎相互拉着手,舞动摇曳。孩子们往往会被眼前的巨物刺激的兴奋起来,飞奔过去,冲向十几米大的悬挑屋顶,建筑又像一座飞船正待飞起,情绪和身体也再次被带向高潮。

草坡之上的巨大实木三角椎 ©朱雨蒙

穿过树林建筑完全展现 ©朱雨蒙

巨大的悬挑屋顶 ©朱雨蒙

正待飞起的飞船 ©朱雨蒙

随后而来的家长们倒也自在,悠然在如巨树遮蔽下的荫凉里闲坐漫聊,眼前展开孩子们奔跑跳跃的身影,时不时叫他们过来休息喝水,隐在通透玻璃内的餐水吧生意也便兴隆了起来。

家长在屋檐下闲坐漫聊 ©朱雨蒙

餐厅围合着攀爬设施 ©朱雨蒙

通透的餐厅室内 ©朱雨蒙

草坡上的餐厅 ©朱雨蒙

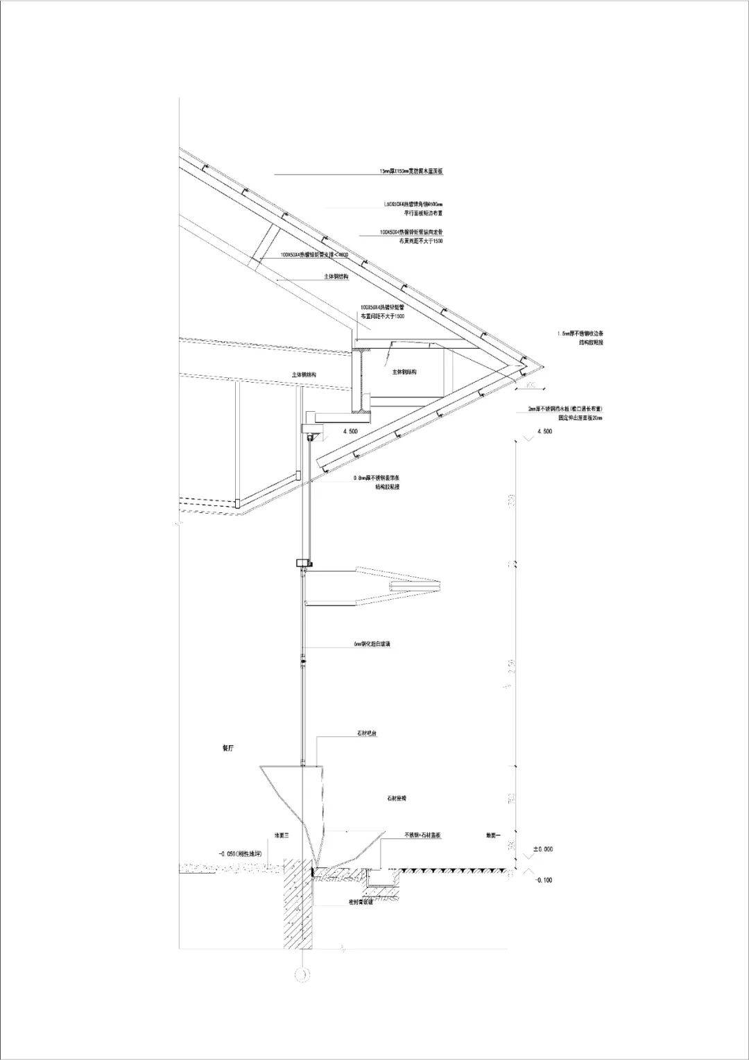
为了使建筑层层叠叠的山形屋顶仿佛从大地里蹦跃而起,主体结构采用了四束组合钢柱来支撑,并且通过外包岩板来分别成为户外座椅,外卖档口,洗手台等功能。上部屋顶为钢网架结构,来实现大的跨度及悬挑,通体外包实木板条,并设置了一些光孔,随之室内的灯具和空调口也在孔内,而厨房和空调等大型设备也皆隐藏于屋顶。

钢结构外包岩板的造型 ©朱雨

钢网架结构的悬挑屋顶 ©朱雨蒙

屋顶细部的实木板条 ©朱雨蒙

室内天花板的光孔 ©朱雨蒙

在设计阶段中,曾设想屋顶内也可以进人,增加餐饮位置及多样体验,但后来从运营角度考虑取消掉了,但造型还是保留,毕竟不是只有人进入的空间才是有功能性的,人们的视觉体验以及园区整体空间层次的考量也是功能性的一部分。

“小山”造型屋顶 ©朱雨蒙

从河、路到餐厅和游乐场的整体空间层次 ©朱雨蒙

我们人类本身并不健全,需要外挂的帮助,比如我们需要鞋来帮助奔跑,需要筷子来帮助进食,需要汽车让我们移动更快,需要电脑让我们更聪明,这些貌似功能性的外挂,帮助我们成“人”。同样,我们的心智也是不健全的,我们需要崇高需要谦逊,需要尊严需要勇气,这些也需要外挂的帮助,比如音乐比如艺术,同样建筑也承担这一部分功能,来帮助我们成为更完整的人。

人、动植物、建筑的关系 ©朱雨蒙

休息的人们 ©朱雨蒙

这个设计的着眼点,于我而言更偏后者,并通过人们的“本能”来驱动。首先,我们先看到“小山符号“时,固有的记忆、情感被本能的唤起,引导我们进入有关自然和童真的情境;之后,走近建筑,巨大的体量、舞动的姿态和奇特的造型,肾上腺素刺激着身体感知本能调动了起来,使得我们进入到某种兴奋活跃的状态;在这种状态下,我们人类心智的那些空洞被放大,也许孩子们会更勇敢的冲向一座座攀爬设施,在玩乐间去探索去挑战,这也许就是勇者小屋的意义所在。

“小山”符号 ©朱雨蒙

随着光线总在变化的色彩表情 ©朱雨蒙

项目图纸

一层平面图 ©大料建筑

屋顶平面图 ©大料建筑

东立面图 ©大料建筑

剖面图 ©大料建筑

墙身大样图 ©大料建筑

位置:湖北武汉 麓客岛

时间:2023-2025

功能:餐厅

面积:200㎡

业主:成都麓湖文化旅游开发有限公司/武汉麓华房地产有限公司

建筑+内装:大料建筑(刘阳,徐丹,胡祎伟)

施工图设计:上海联创设计集团有限公司A

商家内装设计:武汉十二平方设计咨询有限公司

景观设计:WTD 纬图设计

摄影:朱雨蒙

山庄提示: 道行不够,道券不够?---☆点此充值☆
 
在线jjybzxw

UID: 551814


发帖
200714
金币
526513
道行
2004
原创
2433
奖券
3100
斑龄
39
道券
1134
获奖
0
座驾
设备
摄影级
在线时间: 44519(小时)
注册时间: 2008-10-01
最后登录: 2025-11-08
只看该作者 沙发  发表于: 3小时前
武汉麓客岛“勇者小屋”儿童游乐场配套餐厅设计解析

项目背景与设计理念
23年初,麓湖在武汉开新盘,延续了与成都麓湖文化旅游开发有限公司的合作传统。此前双方已在成都、海南等地合作多个项目,如成都的一片森林儿童博物馆、伊甸岛建筑、CPI规划,以及海南的世纪海角商业街、骑楼老街规划等。此次为武汉麓客岛儿童游乐场配套设计的餐厅,命名为“勇者小屋”,旨在通过建筑形态激发孩子们克服困难的勇气。餐厅室内面积约200平米,但强调延展大量半室外空间,作为游人进岛的门户,需具备显著的识别性和吸引力。

设计灵感:“跳舞的小山”
设计师在创作过程中深受南宋词人蒋捷词作的影响,其“闲游闲玩”、“红了樱桃,绿了芭蕉”等直白而富有诗意的表达,带来了轻快奇异的设计心境。核心设计概念是创造一座“跳舞的小山”,这一灵感源自两张经典画作:马蒂斯40岁的《舞蹈》(捕捉生命力与动态)和王希孟18岁的《千里江山图》(少年意气与山水气韵)。通过毛笔绘制的母题(规律叠加渐变形成的树林/山峦/云彩意象)与色块形体的结合,最终演化出建筑形态。

方案演变与材料选择
初期构思了两种方案:
1. 氧化铜板方案:采用大面积双曲面造型,虽形态独特但成本过高。
2. 实木条方案:全平面构造,经济可行,最终选定此方案。

建筑布局沿岛边界微微弯曲展开,以饱满的高度确保在河对岸即可望见,强化门户形象。巨大的实木三角椎体量悬浮于地面,形成十几米大的悬挑屋顶,如同“待飞起的飞船”,极具视觉冲击力。

建筑形态与空间体验
外观特征
- “小山”形态:层层叠叠的山形屋顶仿佛从大地蹦跃而起,通过钢结构支撑实现大跨度悬挑。
- 材料运用:主体结构为四束组合钢柱外包岩板,形成户外座椅、外卖档口、洗手台等功能;上部屋顶为钢网架结构,外包实木板条,并设置光孔。
- 动态感:三角椎相互“拉手”舞动摇曳,孩子们常被其巨物形态吸引,飞奔冲向悬挑屋顶。

室内外空间
- 半室外荫凉空间:巨大的悬挑屋顶为家长提供遮阳休憩场所,可悠闲观看孩子在攀爬设施中奔跑。
- 通透室内:玻璃幕墙围合的餐水吧区域通透开放,生意兴隆。
- 整体空间层次:从河、路到餐厅和游乐场形成连续的空间序列,视觉体验丰富。

结构与技术细节
- 主体结构:四束组合钢柱支撑主体,外包岩板实现功能集成;钢网架屋顶实现大跨度悬挑。
- 屋顶处理:实木板条外包,设置光孔用于采光和设备隐藏(灯具、空调口),厨房及大型设备隐藏于屋顶内部。
- 原设计优化:曾计划允许人进入屋顶增加餐饮位置,后因运营考虑取消,但保留造型以强化视觉体验和空间层次。

文化内涵与人文关怀
设计师认为建筑不仅是功能性的空间,更能“帮助我们成为更完整的人”。通过“小山符号”唤起人们对自然和童真的固有记忆与情感;巨大的体量、舞动的姿态刺激身体感知本能,激发兴奋活跃状态;进而放大人类心智的空洞,鼓励孩子们在玩乐中探索、挑战自我,这正是“勇者小屋”的深层意义。

项目信息
- 位置:湖北武汉 麓客岛
- 时间:2023-2025年
- 功能:餐厅(儿童游乐场配套)
- 面积:约200㎡
- 业主:成都麓湖文化旅游开发有限公司/武汉麓华房地产有限公司
- 建筑设计+内装:大料建筑(刘阳、徐丹、胡祎伟)
- 施工图设计:上海联创设计集团有限公司
- 商家内装设计:武汉十二平方设计咨询有限公司
- 景观设计:WTD 纬图设计
- 摄影:朱雨蒙

总结
“勇者小屋”餐厅以其独特的“跳舞的小山”形态、丰富的空间体验和深刻的人文关怀,成功成为武汉麓客岛儿童游乐场的标志性建筑。它不仅满足了餐饮配套的基本功能,更通过建筑语言激发了儿童的勇气与探索精神,为家长和游客提供了愉悦的休憩场所。这一设计延续了麓湖系列项目一贯的高品质与创新性,是建筑艺术与儿童友好理念结合的典范。
如何不发帖就快速得到金币道行
 
在线姜谷粉丝

UID: 1569053

精华: 2
级别: 玉清道君

发帖
162505
金币
442626
道行
20030
原创
766
奖券
311
斑龄
0
道券
30
获奖
0
座驾
设备
摄影级
在线时间: 19616(小时)
注册时间: 2012-06-21
最后登录: 2025-11-08
只看该作者 板凳  发表于: 2小时前
“跳舞的小山”餐厅位于武汉麓客岛的勇者之丘森林冒险乐园区域,由大料建筑(DL Atelier)设计,是该岛极具标志性的亲子主题空间。其设计理念与建筑特色主要体现在以下方面:

一、设计概念:自然与童趣的舞蹈
丘陵形态的拟态设计:建筑外观模拟连绵起伏的小山丘,白色曲面屋顶如凝固的波浪,呼应“跳舞”的动态意象,与麓客岛“野趣自然”的生态主题深度契合。
童话场景的具象化:设计师将儿童想象中“会跳舞的山丘”转化为实体空间,通过柔和的曲线与错落体块,营造出宛如童话世界的梦幻感,成为亲子游客的沉浸式打卡点。
二、空间布局:功能与美学的交融
开放式互动就餐区
一层采用全景落地玻璃幕墙,模糊室内外界限,用餐时可眺望森林乐园与湖景。
亲子用餐区设置矮桌圆凳、彩色软垫及迷你舞台,方便儿童活动与家庭互动。
屋顶观景与探索空间
屋顶设计为可攀爬的缓坡平台,儿童可沿坡道“登顶”,俯瞰勇者之丘乐园全景,赋予建筑游戏属性。
顶部嵌入环形天窗,引入自然光线的同时形成光影律动,呼应“跳舞”主题。
趣味性细节设计
外墙局部采用彩色渐变玻璃,随着日光角度投射变幻的光斑;
楼梯扶手嵌入波浪形陶土砖,触感与视觉兼具童趣;
卫生间区域以森林洞穴为灵感,搭配圆镜与树叶形灯具

三、材料与生态融合
自然材质运用:建筑表皮选用白色微水泥与木质格栅,地面铺设水磨石,呼应麓客岛原始的草木与沙石肌理。
绿色技术结合:屋顶绿植减少热辐射,雨水收集系统用于灌溉周边花园,体现可持续理念。
该餐厅不仅是用餐场所,更通过建筑语言将“游戏”植入空间,成为儿童探索自然与想象力的载体。其流动的形态与麓客岛的水岸、草坪、森林交织,成为岛内“自然生长·自在生活”理念的空间注解。
[ 此帖被姜谷粉丝在2025-11-08 09:54重新编辑 ]
如何不发帖就快速得到金币道行
 
我有我可以
快速回复
限120 字节
认真回复加分,灌水扣分~
 
上一个 下一个