切换到宽版
  • 12阅读
  • 2回复

[奇观]南京华润置地中心写字楼 / 上海都设营造建筑设计事务所[33P] [复制链接]

上一主题 下一主题
在线jjybzxw

UID: 551814

 

发帖
201021
金币
528640
道行
2004
原创
2433
奖券
3100
斑龄
39
道券
1134
获奖
0
座驾
设备
摄影级
在线时间: 44580(小时)
注册时间: 2008-10-01
最后登录: 2025-11-09
只看楼主 倒序阅读 使用道具 楼主  发表于: 3小时前


© 章勇
01.
和而不同
由都设设计的南京雨花置地中心双塔(150m 与 120m)正式竣工,这是华润在南京雨花区的综合开发的一部分,它与还未建成的由罗杰斯事务所设计的200m塔楼以及旁边公园由都设设计的100米塔楼共同统领此区域的城市天际线。

▲城市主干道视角© 章勇
双塔紧邻已经确定方案的200米塔楼,三栋楼需要协调统一,200米塔楼以“视窗”为设计出发点,双塔既要和其协调,又需要有自身的特点,造价也有不同,所以这是一次“限制中的设计”,也是一张有轮廓之后的画作。

▲整体体量模型© 都设营造

▲项目整体鸟瞰© 章勇
呼应
通过延续体块划分逻辑,在西侧城市界面上,如“视窗”般的玻璃体量形成逐级上升的错落关系,从而形成呼应。山墙面四个柱子突显,从底到顶“支撑”玻璃体量,强化极具辨识度的造型关系。
▲立面分析图© 都设营造

▲街区道路视角© 章勇

▲建筑立面© 章勇
不同
双塔标准层控制在2000平米以内,以方正标准层保障办公效率,因此不做大的内收,仅在大堂、塔冠做局部切角,既呼应200米塔楼的几何语言,又保证了办公空间的方正好用。

▲从城市主干道视角看双塔© 章勇

▲从商业街区看双塔© 章勇

▲150塔楼人视角© 章勇
02.
结构成就建筑之美 — 270度的景观面
山墙的柱子并非只是装饰,而是结构结合造型,取消传统转角部必需的结构柱,两侧分别留出约9米的玻璃界面,使每层转角形成270度无遮挡景观面,几乎消弭建筑表皮的“边界感”,重新定义了南京高层办公的空间。

▲立面构造模型© 都设营造

▲转角放开的标准层室内© Pelli Clarke & Partners

▲转角窗© Pelli Clarke & Partners
03.
开启 — 完整的玻璃幕墙面
为了最大化办公区域的视野并保证幕墙的完整性,立面采用夹胶中空玻璃,取消防护栏杆。同时把开启扇设在底部,避免了开启对外立面的影响。
▲标准段节点及渲染效果© 都设营造

▲标准段立面© 章勇

▲标准段特写© 章勇

▲开启扇开启实景© 章勇
04.
大堂 — 向现代主义致敬
密斯在西格拉姆大厦中通过底层后退实现了大堂的无柱和自由,结构的真实性以及底层空间的自由度使其成为现代主义高层建筑的典范。

▲西格拉姆大厦底部空间与环境的融合© 网络

▲利用放开的角部提高大堂进深感© 章勇

▲底部空间与环境的融合© 章勇
在国内严格的防火分区以及习惯性的中筒结构形式双重限制下,内退往往造成底层空间进深小。本案结合造型,利用角部空间增加其进深感,从而实现了国内少见的无柱大堂空间。通透的大堂让室内外环境沟通,后退的空间也彰显了结构的力量。

▲无柱的大堂空间© Pelli Clarke & Partners

▲大堂与电梯厅© Pelli Clarke & Partners
这种对于空间的解放不仅限于大堂,在避难层的可用空间里也存在。

▲避难层的自由空间© 章勇

▲避难层的自由空间© 章勇
05.
有限造价下的高完成度
设计通过精准控制,在幕墙单方造价不超1500元/㎡的限制下,实现了高完成度。

▲正立面标准段幕墙© 章勇
造价的分配:占主要立面的标准段要极限地将造价控制,才能在底部等近人尺度的地方用更好的材料提升效果。标准段框架式,以金属开启扇调节玻璃尺寸(≤4㎡)并增加层次,上下单元的脱离降低了对施工平整度的要求。大堂区域设计采用夹胶超白玻璃,相对中空玻璃能降低造价,同时提升大堂的通透观感。室内采用T型精致钢立柱,弱化内侧体量感。同时,精致钢承担门斗的部分竖向荷载,以此取消门斗钢立柱。主入口立柱以约9米通高铝复合板覆面,两柱之间外挑不锈钢雨棚,形成丰富的空间关系。

▲主入口设计模型推敲© 都设营造

▲大堂正面效果© 章勇
塔楼东侧紧邻商业街区,设计整合出地面风井,在二层与空调室外机结合布置格栅,首层完整留给商业界面。格栅微微倾斜,在保证外机通风率的前提下,确保人视点观感。

▲二层格栅节点及实景效果© 都设营造

▲大楼街景© 章勇

▲塔冠实景© 章勇
大型公建要达到一定的落地水准,光靠建筑专业是不现实的。本项目从方案阶段即开始各专业协调设计,建筑师牵头协调结构、机电、幕墙、泛光等多专业齐头并进。全流程的“一体化设计,精细化营造”,既满足了限价要求,又在城市融合、空间体验与建筑品质上实现突破,为标准化写字楼的创新实践提供了可借鉴的范本。
项目图纸

▲一层平面图© 都设营造

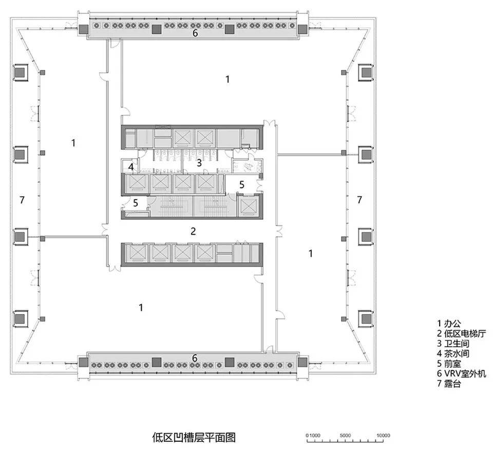
▲低区凹槽层平面图© 都设营造

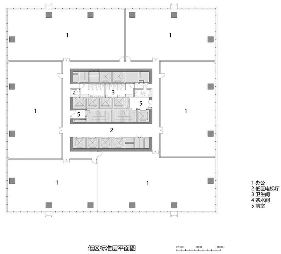
▲低区标准层平面图© 都设营造

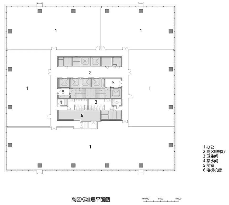
▲高区标准层平面图© 都设营造

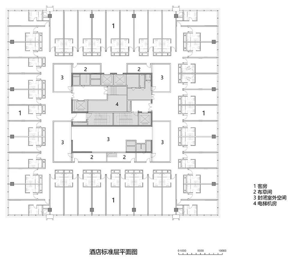
▲酒店标准层平面图© 都设营造
▲立面图© 都设营造
项目名称:南京华润置地中心写字楼
项目类型:办公,酒店
建筑设计:上海都设营造建筑设计事务所有限公司
设计团队:孔君涛、吕骥超、戴哲斌、姜安东
项目设计:2021.8-2024.8
完成年份:2025
项目地址:江苏省南京市陇淮路与数字大道交叉口
摄影版权:章勇
委托方: 南京润玺房地产开发有限公司
建筑设计:上海都设营造建筑设计事务所有限公司
施工图(地上)设计:上海天华建筑设计有限公司
公区精装设计:Pelli Clarke & Partners
地下室建筑设计:江苏省建筑设计研究院股份有限公司
景观设计:澳洲艺普得城市设计咨询有限公司
幕墙顾问:弗思特建筑科技有限公司
照明设计:上海碧甫照明工程设计有限公司
绿建顾问:江苏省建筑科学研究院有限公司
人防设计:江苏省建筑设计研究院股份有限公司
项目中使用的三种材料及对应的品牌
1. 玻璃,信义
2. 铝复合板,阿鲁美格
3. 旋转门,盖泽
山庄提示: 道行不够,道券不够?---☆点此充值☆
 
在线jjybzxw

UID: 551814


发帖
201021
金币
528640
道行
2004
原创
2433
奖券
3100
斑龄
39
道券
1134
获奖
0
座驾
设备
摄影级
在线时间: 44580(小时)
注册时间: 2008-10-01
最后登录: 2025-11-09
只看该作者 沙发  发表于: 3小时前
南京雨花置地中心双塔由都设(Dushe Architects)设计并建成,其与未建的、由诺曼·福斯特合作事务所罗杰斯·斯特克港(RSHP, Rogers Stirk Harbour + Partners)设计的200米塔楼方案,以及周边城市公园共同构成了一组极具张力的城市空间对话。这一区域不仅是南京南部新城的重要节点,更成为探讨“建成”与“未建”、“本土实践”与“国际理念”、“功能理性”与“城市象征”之间复杂关系的典型案例。以下从五个维度深入解析这三者如何构建“和而不同”的城市空间关系:

---

一、形态语言:差异中的秩序共振

都设设计的雨花置地中心双塔以简洁现代的方正体量、横向线条分割与玻璃幕墙系统呈现,强调垂直挺拔与商业效率,体现中国当代高密度开发中对实用主义与经济性的回应。而罗杰斯事务所原设计方案则延续其标志性的“结构外露+空中连廊+生态表皮”风格——轻盈钢结构、水平延展的空中平台、绿色退台与可呼吸立面,更具技术诗意与未来主义气质。

尽管两者美学取向迥异,但均遵循清晰的几何逻辑与结构表达,在视觉上形成“刚劲”与“轻灵”的对比。这种差异并未造成冲突,反而通过高度控制、退让间距与轴线呼应,在城市天际线中达成一种“异质同构”的和谐。双塔的对称布局与未建塔楼的单体中心性形成“群像”与“孤峰”的互补,丰富了空间叙事层次。

---

二、空间层级:建成现实与规划理想的共时存在

虽然罗杰斯设计的200米塔楼未能实施,但其在城市设计导则、控规文本与片区愿景图中仍作为“理想原型”持续影响着区域发展逻辑。它不仅是一个建筑提案,更是一种城市抱负的象征——代表可持续、人性化、高技派的城市未来。

而都设双塔作为现实载体,则承担起实际的功能填充与空间锚定作用。二者在时间维度上形成“未完成的对话”:已建项目在尺度、界面处理与公共空间衔接上,有意预留了对原塔楼空间意图的呼应,如广场轴线延伸、视线通廊保留、绿化系统的对接等。这种“为缺席者留位”的设计策略,使未建之物依然参与空间建构,实现了物理缺失与精神在场的统一。

---

三、公共性重构:塔楼与公园之间的中介角色

周边城市公园作为共享绿地系统,是调和建筑之间张力的关键媒介。都设双塔在底层设置了多层次的架空层、步行通道与商业界面,主动向公园开放,试图打破传统写字楼的封闭性。同时,通过景观台阶、观景平台与慢行环道,将人流从城市道路引向绿地区域,强化“建筑—广场—自然”的连续性。

而罗杰斯方案原本设想的空中花园、垂直森林与公众可达的高层观景层,则为公园系统提供了“向上延展”的想象维度。尽管该塔未建,但其理念间接推动了现有公园设计中生态密度与活动多样性的提升——例如增设雨水花园、艺术装置与多功能草坪,形成“地面补偿”机制,弥补立体公共空间的缺失。

---

四、文化语境:本土实践与全球话语的协商

都设作为根植于长三角地区的本土设计机构,其作品往往体现出对地方气候、建造逻辑与市场节奏的深刻理解。雨花双塔注重施工可行性、成本控制与招商需求,在形式克制中追求品质感,反映了一种务实的城市更新路径。

相比之下,罗杰斯事务所的设计则携带强烈的“全球地标”基因,试图以标志性形象介入城市身份建构。这种“国际明星建筑师”与“本土深耕团队”的并置,本身就是中国当代城市发展多元动力的缩影。

二者虽未在同一物理层面实现共构,但在政策讨论、媒体传播与公众认知中不断被比较与诠释,从而催生出一种批判性反思:我们究竟需要怎样的城市中心?是技术乌托邦式的象征符号,还是高效宜居的功能集合体?正是在这种张力之中,形成了真正意义上的“和而不同”。

---

五、未来可能性:动态演进中的城市拼图

值得注意的是,“未建”并不等于“终结”。随着南京南部新城整体推进,土地价值、政策导向与市场需求可能在未来重新激活原200米塔楼地块的发展潜力。届时,无论是重启国际竞赛,还是在原有概念基础上进行本土化转译,都将面临如何与现有双塔及公园系统协调的新课题。

此时,当前的空间格局便成为一种“前置条件”:都设双塔的存在不再是孤立个体,而是新设计必须回应的环境参照。由此,整个片区呈现出一种“阶段性完成态”下的开放结构——如同一幅尚未落笔终章的城市画卷,在变与不变之间持续生成意义。

---

结语:和而不同,是城市生命力的本质体现

南京雨花置地中心双塔与未建的罗杰斯塔楼及其周边公园的关系,超越了简单的建筑对比,升华为一场关于城市发展哲学的深层对话。它们以“建成”与“未竟”、“现实”与“理想”、“本土”与“国际”的多重对立统一,共同编织出一个充满张力却又彼此成全的城市空间网络。

真正的“和而不同”,不在于形式上的趋同或割裂,而在于各方在尊重差异的前提下,通过空间留白、视觉呼应、系统连接与理念互文,构建起一种可持续演进的城市生态。这正是当代中国城市转型中最值得珍视的智慧——在多元力量交织中,寻找动态平衡,在不确定性中孕育新的可能。

如何不发帖就快速得到金币道行
 
在线姜谷粉丝

UID: 1569053

精华: 2
级别: 玉清道君

发帖
162630
金币
443789
道行
20030
原创
766
奖券
311
斑龄
0
道券
30
获奖
0
座驾
设备
摄影级
在线时间: 19639(小时)
注册时间: 2012-06-21
最后登录: 2025-11-09
只看该作者 板凳  发表于: 2小时前
南京华润置地中心(华润置地南京G39项目)位于南京南部雨花台区,总建筑面积约76.6万方,包含超高层办公、五星级酒店、商业综合体、公寓等业态,建成后将成为本区域核心地标。其中,上海都设营造建筑设计事务所有限公司承担150m、120m及100m三栋高层塔楼方案设计(RSHP事务所担任项目总体规划设计及200m超塔方案设计)。

F地块写字楼详情:

包含两栋高层写字楼:A塔高150m(政府回购办公楼)、B塔高120m(销售型办公楼);
塔楼呈对角布置,避免对视;办公大堂均位于建筑西侧,面向城市主干道梅苑南路,形成良好昭示面;
建筑造型简约现代,结合避难层进行形体划分,呼应“视窗”整体概念;两侧山墙面设置装饰立柱,与200米超塔形成层层叠落的空间关系;


建筑立面采用横明竖隐框架式幕墙,底部采用铝板内开启扇,满足室内通风要求;办公大堂两层通高,立面选用超白夹胶玻璃,创造通透开放的社交空间。
该项目设计时间为2022年,建设业主为华润置地,建筑合作设计单位为天华建筑设计有限公司、江苏省建筑设计研究院有限公司,室内设计为上海大朴室内设计有限公司,幕墙顾问为弗思特建筑科技有限公司,灯光顾问为上海碧甫照明工程设计有限公司。
如何不发帖就快速得到金币道行
 
我有我可以
快速回复
限120 字节
认真回复加分,灌水扣分~
 
上一个 下一个