切换到宽版
  • 9阅读
  • 2回复

[奇观]藏起来的院子与没有立面的房子 - 亭桥驿 / 森上建筑[30P] [复制链接]

上一主题 下一主题
在线jjybzxw

UID: 551814

 

发帖
199610
金币
518090
道行
2004
原创
2433
奖券
3100
斑龄
39
道券
1134
获奖
0
座驾
设备
摄影级
在线时间: 44323(小时)
注册时间: 2008-10-01
最后登录: 2025-11-04
只看楼主 倒序阅读 使用道具 楼主  发表于: 7小时前

© 吴清山
集镇的历史与现代化村镇的立面整治
亭桥集镇位于位于桐乡市高桥街道西侧的亭桥村。相传很早以前,就以高桥为中心,依托水上交通,临水河岸的水阁楼房子形成了手工业和商业相当发达的繁华集市,有“小长安”之称。


▲建筑鸟瞰© 吴清山


▲建筑概览© 吴清山
随着时代的变化,街道南边临水河岸上的水阁楼房子已逐渐消失。亭桥以北新建了一条主干街道,取名为亭桥路。沿车道两侧为上宅下铺的集镇商街,集镇街道虽小,但五脏俱全——菜市场、面店、茶馆店、百货店、糕团店、肉店、理发店、医疗诊所、学校等成为了周边村落居民离不开的生活配套。

▲建造前后对比© 吴清山

▲建筑立面© 吴清山

▲建筑沿街视角© 吴清山
集镇建筑大部分建于八九十年代,近年来经历了一次街道改造。街道的修缮与形象提升本着基础建设为先,整治并行的原则,保证了街道界面的统一性。道路两侧业态均以商铺为主,门头+店面的形式贯穿了整条街道。改建前驿站的基地是一栋两层高的老建筑,仅店面宽度的山墙面向马路,需通过一条小路折进建筑的入口,南侧有一个杂院被遮挡在沿街建筑身后,三面都被民居和商铺所围合。
▲街道的演变© 森上建筑

▲建筑在集镇街道中© 吴清山
街道的”缺口“与装满生活的“口袋”
在传统的村镇中,广场、院落和街道几乎容纳了所有日常生活中的社交活动。单一模式化的街区整治与改造挤压了这些集聚的生活空间。设计希望打破较为封闭的沿街状态,让街道有一个”缺口“,产生不同的节奏与变化。倾斜的红砖墙提示人们可以走到街区的背面去发现一个“口袋小院”的存在,并参与到这个新落成的公共场地中。沿街商铺的背后原有一个雨棚,经修缮和粉刷后改建成了一个小舞台,相对应的院落边界则由一些地景式的座位区组成。

▲街道的“缺口”© 吴清山


▲开放的空间© 吴清山
小院日常可供村民歇息或孩童们嬉戏,也可以作为一层茶饮的外摆空间。红砖材质的选用呼应了集镇上有着历史的水塔,留下一些传统生活与市井文化的印记。村镇定期会在这里放映露天电影,举办小型演出,丰富新亭桥集镇街道的文化生活。


▲口袋小院© 吴清山


▲小院放映露天电影© 吴清山
没有立面的房子
建成后的驿站是亭桥街道唯一直接沿街的公共建筑。不同于常规的商业界面,设计有意将书吧和茶吧功能后置,不直接暴露于街面。建筑立面变成公共空间的一部分,打开的立面成为人行步道的扩展与延续:开放的大楼梯朝向街道,既在平面上隔绝了外部车行对于一层活动空间的影响,又在垂直方向上指引至二层的书吧。立体的院落与平台交织于建筑的形体之中,成为街区立面上有趣的公共休闲空间。

▲场地功能分析© 森下建筑


▲立面成为人行步道的扩展与延续© 吴清山


▲开放的大楼梯© 吴清山
新集镇的生活图块
心理学家德克·德·琼治曾提出的边界效应理论中指出:森林、海滩、树丛、林中空地等的边缘都是人们喜爱的逗留区域,而开敞的旷野或滩涂则无人光顾。人们在外部空间中活动的时候会下意识地寻找自己的空间归属……人流的密集和活动的交叉为边界带来了意想不到的活力。
▲建筑生成图© 森下建筑


▲村民日常社交的公共发生地© 吴清山
亭桥驿作为新集镇的休闲生活集聚地,有着与街道形象差异化的立面和一个鲜明的红色院落图块。集合了书吧、茶饮、公众休闲娱乐、文创活动等功能,成为了一个功能灵活的公共空间。无论建筑内部与口袋内院的视线对话,还是广场本身与舞台的关系,都构成了视线与空间上的交互。作为亭桥街道唯一直接沿街的公共建筑,村民集会、小型市集、孩子玩闹、露天电影等多样的生活都在此呈现,成为了村民日常社交的公共发生地。

▲夜览© 吴清山

▲夜览© 吴清山
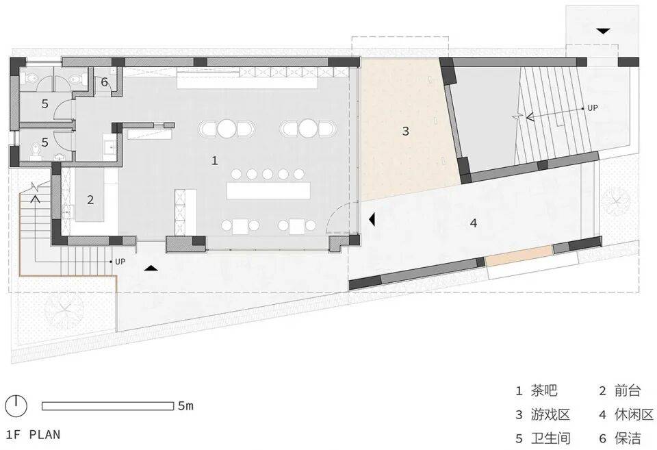
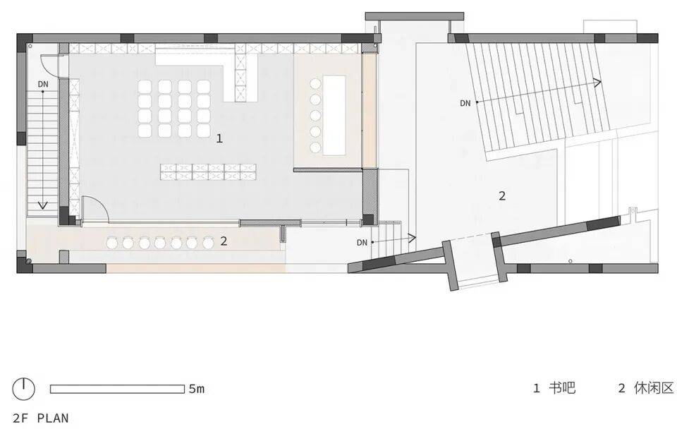
项目图纸


▲平面图© 森下建筑

▲立面图© 森下建筑


▲剖面图© 森下建筑
项目名称:亭桥驿——藏起来的院子与没有立面的房子
项目类型:建筑设计
设计方:森上建筑
项目设计:2021.11
完成年份:2025.05
主要设计团队:章钧添孙鸿斐王鑫
合作团队:结构顾问:苏勤军
项目地址:浙江桐乡
建筑面积:600㎡(含庭院)
摄影版权:吴清山
客户:桐乡市人民政府高桥街道办事处
材料:混凝土,面砖,真石漆
山庄提示: 道行不够,道券不够?---☆点此充值☆
 
在线jjybzxw

UID: 551814


发帖
199610
金币
518090
道行
2004
原创
2433
奖券
3100
斑龄
39
道券
1134
获奖
0
座驾
设备
摄影级
在线时间: 44323(小时)
注册时间: 2008-10-01
最后登录: 2025-11-04
只看该作者 沙发  发表于: 7小时前
亭桥集镇的历史脉络与现代化立面整治实践

一、亭桥集镇的历史渊源与发展变迁

1. 地理位置与早期繁荣
亭桥集镇位于浙江省桐乡市高桥街道西侧的亭桥村,其名称源于跨塘的亭子桥。据史料记载,亭桥集镇地处两县交界之地,依托水上交通优势,曾是商品、农副产品的集散地,尤其以早集闻名遐迩。历史上,集镇临水河岸的水阁楼房子形成了手工业和商业相当发达的繁华集市,有“小长安”之称,展现了江南水乡集镇的典型风貌。

2. 街道格局的演变
- 传统格局:集镇主干道沿北沙渚塘两岸分布,呈丁字形街道格局。街北侧开设各式店面,南侧有水阁楼及大型桥埠头,河上船只停靠频繁,形成了“前店后坊”的传统商业形态。
- 近代转型:随着时代发展,街道南边临水的水阁楼逐渐消失。20世纪90年代后,在亭桥以北新建了一条主干街道,命名为亭桥路。沿亭桥路两侧形成“上宅下铺”的集镇商街,成为周边村落居民的生活配套中心,涵盖菜市场、面店、茶馆、百货店、学校等齐全业态。

3. 行政区划调整
- 1992年6月,全市撤乡并镇,亭桥归入高桥镇。
- 2017年8月,撤销桐乡市高桥镇建制,设立开发区(高桥街道),亭桥集镇成为高桥街道的重要组成部分。
- 如今,以亭桥作为行政区域名称的尚有亭桥村,村委所在地在亭子桥南200米。

二、现代化村镇立面整治的核心实践

1. 整治背景与目标
随着城镇化进程加快,亭桥集镇原有建筑多建于八九十年代,存在风貌杂乱、设施老化等问题。为提升集镇形象与居民生活质量,桐乡经济开发区(高桥街道)启动了亭桥集镇有机更新项目,总投资4200万元,总用地8.3亩。整治秉持“基础建设为先,整治并行”的原则,旨在实现街道界面统一性与功能提升的双重目标。

2. 关键整治措施
(1)街道整体修缮与形象提升
- 立面改造:对沿街商铺进行统一规划,采用“门头+店面”的标准化形式,确保街道界面整洁有序。针对老旧建筑外立面进行翻新,采用砖红色外墙面砖、深灰色真石漆、铝板窗套等材料,既保留传统韵味又体现现代简约风格。
- 道路优化:对亭桥路进行拓宽与沥青铺设,改善交通通行条件;增设非机动车停车区和机动车停车位,缓解停车压力;通过绿化带改造和人行道铺装升级,提升步行体验。

(2)标志性建筑改造:亭桥·活力篮球空间
- 旧影剧院重生:将一座陈旧破败的影剧院改建为“亭桥·活力篮球空间”,这是2024年开发区民生实事项目的重要组成部分。改建后的建筑雪白外墙搭配橙色楼梯口配色,成为集镇最亮眼的存在。
- 功能升级:内部设置室内篮球场、乒乓球室、室外篮球活动区等,色彩以橙蓝为主色调,营造鲜亮活泼的运动氛围。室外工程同步推进沥青路面浇筑和绿化种植,完善配套设施。

(3)公共空间营造:亭桥驿的创新设计
- “缺口”与“口袋小院”理念:打破封闭沿街状态,在街道设置“缺口”,引导人流进入背后的“口袋小院”。倾斜的红砖墙提示入口,院内设有修缮后的雨棚舞台和地景式座位区,成为村民歇息、孩童嬉戏及举办露天电影、小型演出的公共空间。
- 无立面的房子:亭桥驿作为沿街公共建筑,将书吧和茶吧功能后置,不直接暴露于街面。建筑立面转化为公共空间延伸部分,开放的大楼梯朝向街道,在隔绝车行干扰的同时引导人流至二层书吧。立体院落与平台交织于建筑形体中,形成丰富的公共休闲空间。

3. 设计亮点与人文关怀
- 红砖材质的选择:呼应集镇历史水塔的红砖元素,保留传统生活与市井文化的印记。
- 多功能复合空间:亭桥驿集合书吧、茶饮、公众休闲娱乐、文创活动等功能,成为村民日常社交的核心场所。其鲜明的红色院落图块与差异化立面设计,在街道中形成独特的视觉焦点。
- 边界效应的应用:借鉴心理学家德克·德·琼治的边界效应理论,在建筑与街道交界处创造活跃的公共交往空间,促进人流密集与活动交叉,赋予新集镇生活活力。

三、整治成效与未来展望

1. 已取得的成效
- 环境改善:通过立面整治、道路优化和绿化提升,集镇整体面貌焕然一新,“脏乱差”现象得到有效治理。
- 功能完善:新增活力篮球空间、亭桥驿等公共服务设施,满足居民运动、阅读、社交等多元需求。
- 文化传承:“口袋小院”露天电影、传统节庆活动等延续了集镇的文化记忆,增强了居民认同感。

2. 未来发展方向
- 有机更新持续深化:亭桥集镇有机更新项目还将新建喜宴中心和其他综合服务用房,并配套建设停车场。目前相关工程正在积极推进中。
- 长效管理机制建立:借鉴潘集镇、芦集镇等地区的经验,构建“镇+村+组+户”责任体系,落实“门前三包”制度,确保整治成果长效保持。
- 产业融合发展:结合集镇特色资源(如湖羊养殖),探索“文旅+农业”发展模式,进一步提升集镇经济活力与吸引力。

结语

亭桥集镇的历史变迁见证了江南水乡从传统集市到现代村镇的转型。通过系统性的立面整治与有机更新,在保留“烟火气”的同时注入“现代感”,实现了区域功能、品质、业态的全面提升。亭桥驿、“活力篮球空间”等项目的成功实践,不仅改善了人居环境,更重塑了集镇的文化灵魂与社区凝聚力。未来,随着各项规划的落地实施,亭桥集镇必将焕发出更加蓬勃的生机与活力,成为现代化人民城市建设的新典范。
如何不发帖就快速得到金币道行
 
在线姜谷粉丝

UID: 1569053

精华: 2
级别: 玉清道君

发帖
161810
金币
436570
道行
20030
原创
766
奖券
311
斑龄
0
道券
30
获奖
0
座驾
设备
摄影级
在线时间: 19517(小时)
注册时间: 2012-06-21
最后登录: 2025-11-04
只看该作者 板凳  发表于: 7小时前
亭桥驿的设计通过“藏”与“消隐”的哲学,重构了建筑与自然的共生关系。其核心设计理念可概括为以下四个维度:

一、“藏”的庭院:内向的诗意空间
层层递进的隐秘性
借鉴传统园林“曲径通幽”的布局,入口以曲折路径引导视线,结合高墙与植被遮蔽主体空间,营造“寻幽探秘”的渐进式体验。园中水景源头被巧妙隐藏,仅以段落式叠水呈现,暗示水源来自想象中的远山。
微缩自然的庭院内核
庭院以镜面水池为核心,倒映天光云影与周边山峦(如马耳山),形成“小中见大”的宇宙观23。绣线菊等原生植物沿边界点缀,弱化人工痕迹,赋予庭院野趣生机。
二、“无立面”的建筑:消解体量的边界策略
材质与地景的融合
建筑外覆深色材质(如夯土、深灰涂料),在林木背景中形成视觉退隐,仿若“从土地生长而出”。坡屋顶与地形起伏呼应,屋顶覆土植草,使建筑成为地景延伸。
界面渗透的流动性
采用大面积落地玻璃与可移动隔断,模糊室内外分界。当门窗开启时,客厅、茶室与庭院连为整体,“消失的立面”转化为空间流动的媒介,呼应威尼斯水岸建筑“因水而生”的开放特质。
三、亭·桥·驿:功能与符号的转译
“亭”的空间锚点
独立亭阁悬挑于水面,顶部采用极薄混凝土板,形态似传统飞檐的当代解构。其既是观景台,亦成为庭院的精神象征。
“桥”的隐喻连接
一座低平折桥横跨水池,桥面贴近水面,行人过桥如踏波而行。桥体木材质与锈钢板结合,隐喻传统与现代的对话。
“驿”的时间叙事
借鉴古驿站的空间序列,通过坡道替代楼梯串联各功能区。坡道侧壁嵌入采光缝,光影随时间游移,标记“驿程”的流动感。
四、隐匿的技术智慧
设备隐藏系统:空调外机、强弱电箱等均藏于墙体夹层或庭院景石内,维护口伪装为景观构件。
生态调节设计:雨水经屋顶草甸过滤后注入水池,再通过潜流湿地净化循环,实现“隐形”的水系统。
亭桥驿的终极意图,是让建筑成为自然的“配角”——庭院是主角,建筑是其低调的容器;立面被消解,是为邀请山川草木成为真正的外衣。
如何不发帖就快速得到金币道行
 
我有我可以
快速回复
限120 字节
认真回复加分,灌水扣分~
 
上一个 下一个