切换到宽版
  • 10阅读
  • 2回复

[奇观]上海交大国家大学科技园(南桥) / MUDO Architects + 帝奥栖合[32P] [复制链接]

上一主题 下一主题
在线jjybzxw

UID: 551814

 

发帖
200714
金币
526513
道行
2004
原创
2433
奖券
3100
斑龄
39
道券
1134
获奖
0
座驾
设备
摄影级
在线时间: 44519(小时)
注册时间: 2008-10-01
最后登录: 2025-11-08
只看楼主 倒序阅读 使用道具 楼主  发表于: 3小时前

东北侧鸟瞰日景

奉贤,上海产业新兴聚集地,聚焦 “美丽大健康、绿色新能源、通用新材料、数智新装备” 四大主导产业,构建 “4+N”现代化产业体系,形成与张江差异化协同的产业新格局。

夕阳中的产业园

塔楼局部立面

项目概述

沿街城市界面

作为奉贤区产业发展轴(奉浦大道)沿线的核心地块,项目现二期规划用地面积约28,600平方米,总建筑面积约90,500平方米,包括2栋塔楼及12座研发厂房,以“科技智造”功能为主导,是集合企业办公研发、生活居住、休闲商业于一体的创新复合型园区,可同时容纳上千人工作与生活。

奉浦大道未来产业轴

西北角城市道路人视

集约的场地,超高密度和高容积率的用地条件,几乎限定了建筑只能以最高效的棋盘式矩阵布局呈现。在此前提下,如何突破传统产业园区的封闭性,在生产能效与办公空间品质之间建立新的平衡,是本项目设计的主要挑战。同时标准与模块化体系有助于在更可控的建造成本内获得更高品质立面, 并缩短建设周期。

中央轴线

设计概念

沿街城市界面

传统产业建筑的空间组织往往遵循刚性分割的流水线逻辑,形成内向封闭的功能单体。为回应现代产业园区多元复合的发展诉求,本项目以 “空间互渗”与“功能共生” 为设计策略,通过南北向的生态景观主轴,整合研发智造、生产测试、服务配套等弹性组团,并与北侧城市绿带形成双向渗透的生态廊道系统 。实现了产业价值链的高效协同,将有限的内部景观作为活性媒介,重塑生产研发空间与城市界面的有机对话。

研发厂房立面肌理

架空层

纵向连接城市与园区的绿谷空间并形成轴线,串联各个组团的同时,结合景观、铺装引导形成一条便捷的开放路径,链接南北一二期两个地块;

标准研发厂房组团内部道路

围绕中轴向两侧辐射,形成广场、庭院、屋顶平台及街巷空间,为园区提供多层次体验的科研环境;

内部落客流线

紧邻一期生产车间布置独栋研发厂房,延续尺度和功能,并与一期生产车间形成生产联动,提高园区运作效率。

建筑语言

现代纯粹的设计语汇清晰的勾勒出简洁有力的建筑轮廓,标准化的立面单元和现代材料的使用,创造轻盈而规整的秩序感。幕墙是建筑热工性能的关键部分,约占整体能耗的40%,是实现节能的关键,园区建筑幕墙系统使用通透率适中的蓝灰色Low-E镀膜夹胶玻璃,满足园区节能需求和使用效率。MUDO通过造型处理,减少玻璃幕墙面积,对框架式幕墙的细节设计和优化处理,在有限的成本下较好地保证建筑的完成度。

办公楼幕墙细节

建筑通过体块的错动与咬合,形成层次丰富、活力灵动的界面形象。延续一期生产车间立面语汇,以纵向线条为主,营造具有强烈的秩序感和视觉延伸性,塑造向上生成的力量感。通过统一的建筑语言和特征,将场地内不同尺度的、不同时期的建筑进行整合;

局部悬挑细节

不同形式的竖向线条,形成统一且丰富的视觉秩序和更加细腻的建筑质感;

办公楼幕墙细节

不同粗细的竖向金属铝板,形成丰富的韵律变化,配合塔楼的错落进退,营造简约高效的视觉效果。

办公楼幕墙细节

沿街塔楼

沿奉浦大道布置科研办公楼和城市酒店,辐射周边,塑造连续的、有力且收放有序的城市界面。紧凑的退线边界下,通过建筑主体量的前后错动和裙房盒子的咬合,形成与多层建筑尺度的过渡,并尽可能创造户外共享的公共空间,促进正式或非正式交流的便利性。

塔楼人视

与周边工业厂区的关系

标准化研发厂房

营造绿色生态研发生产环境

标准研发厂房

场地南侧由12栋街区尺度的建筑盒子组成,相互错动,界面丰富。建筑盒子围绕近人尺度的庭院展开,营造街区尺度,保证彼此之间都能有较开阔的景观视野。

标准研发厂房区

极致用地内的错落景观

标准厂房局部立面

研发厂房在成本与美学的平衡中,以“标准化幕墙系统 ”和“模块化建造”实现高效落地。竖向延展的立面肌理,不仅强化了建筑张力,内部通过减法、内凹等收分策略,高效化解多栋厂房的之间的拥挤感。竖向带状窗结合错动竖向线条的虚实对比,赋予了建筑轻盈悬浮的现代感,最终让规整的工业模块呈现为轻盈通透的现代技术载体。

内部货运流线

标准研发厂房立面细节

总平面布局

沿街高层平面图

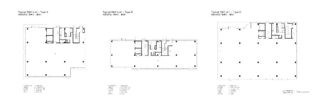
标准研发厂房平面图

墙身节点大样

墙身节点大样

墙身节点大样

与原始厂区的风格匹配和立面语言的延续

沿街南立面图

项目名称:上海交大国家大学科技园(南桥园区)

项目类型:产业园 / 办公建筑

设计方:MUDO Architects + 帝奥栖合

项目设计:2021

完成年份:2025

主持建筑师:吴信烨

设计团队:吴信烨,罗斌辉,穆小东,张翅

项目地址:上海市 – 奉贤区

建筑面积:90,500㎡

摄影版权:Dong建筑影像 + MUDO Architects

设计合作方:

施工图设计:上海奉贤建筑设计有限公司

景观设计:上海奉贤建筑设计有限公司

幕墙顾问:上海筑联建设工程有限公司

建设方:上海奉贤二建股份有限公司

客户:上海交通大学国家大学科技园·南桥园区

山庄提示: 道行不够,道券不够?---☆点此充值☆
 
在线jjybzxw

UID: 551814


发帖
200714
金币
526513
道行
2004
原创
2433
奖券
3100
斑龄
39
道券
1134
获奖
0
座驾
设备
摄影级
在线时间: 44519(小时)
注册时间: 2008-10-01
最后登录: 2025-11-08
只看该作者 沙发  发表于: 3小时前
上海交大国家大学科技园(南桥园区)项目解析

项目概况
上海交大国家大学科技园(南桥园区)位于上海市奉贤区,是奉贤新城产业发展轴(奉浦大道)沿线的核心地块。该项目二期规划用地面积约28,600平方米,总建筑面积约90,500平方米,包含2栋塔楼及12座研发厂房。作为集合企业办公研发、生活居住、休闲商业于一体的创新复合型园区,其设计旨在突破传统产业园区的封闭性,在高密度用地条件下实现生产能效与办公空间品质的平衡,构建与张江差异化协同的“4+N”现代化产业体系。

设计核心挑战与策略
高密度用地的应对
项目面临集约场地、超高密度和高容积率的用地条件,几乎限定了建筑以最高效的棋盘式矩阵布局呈现。设计团队的核心挑战在于如何在有限空间内打破传统产业园区的封闭性,建立生产能效与办公空间品质的新平衡。

设计策略:“空间互渗”与“功能共生”
1. 生态景观主轴整合:通过南北向的生态景观主轴,整合研发智造、生产测试、服务配套等弹性组团,并与北侧城市绿带形成双向渗透的生态廊道系统。
2. 绿谷空间轴线:纵向连接城市与园区的绿谷空间形成轴线,串联各个组团,结合景观、铺装引导形成便捷开放路径,链接南北一二期地块。
3. 多层次空间体验:围绕中轴向两侧辐射,形成广场、庭院、屋顶平台及街巷空间,为园区提供多层次体验的科研环境。
4. 生产联动优化:紧邻一期生产车间布置独栋研发厂房,延续尺度和功能,并与一期生产车间形成生产联动,提高园区运作效率。

建筑语言与立面设计
现代纯粹的设计语汇
- 简洁有力的轮廓:现代纯粹的设计语汇清晰勾勒出简洁有力的建筑轮廓,标准化的立面单元和现代材料的使用创造轻盈而规整的秩序感。
- 节能幕墙系统:幕墙约占整体能耗的40%,园区建筑幕墙系统使用通透率适中的蓝灰色Low-E镀膜夹胶玻璃,满足节能需求和使用效率。MUDO通过造型处理减少玻璃幕墙面积,并对框架式幕墙细节优化,在有限成本下保证建筑完成度。

立面肌理与细节
- 体块错动与咬合:建筑通过体块的错动与咬合,形成层次丰富、活力灵动的界面形象。延续一期生产车间立面语汇,以纵向线条为主,营造强烈秩序感和视觉延伸性,塑造向上生成的力量感。
- 竖向线条韵律:不同形式和粗细的竖向金属铝板形成统一且丰富的视觉秩序和细腻质感,配合塔楼的错落进退,营造简约高效的视觉效果。
- 研发厂房立面:标准化研发厂房采用“标准化幕墙系统”和“模块化建造”,竖向延展的立面肌理强化建筑张力。内部通过减法、内凹等收分策略化解多栋厂房拥挤感,竖向带状窗结合错动竖向线条的虚实对比,赋予建筑轻盈悬浮的现代感。

城市界面与功能布局
沿街城市界面
- 科研办公楼与城市酒店:沿奉浦大道布置科研办公楼和城市酒店,辐射周边,塑造连续、有力且收放有序的城市界面。
- 尺度过渡与公共空间:在紧凑退线边界下,通过建筑主体量前后错动和裙房盒子咬合,形成与多层建筑尺度的过渡,并尽可能创造户外共享公共空间,促进正式或非正式交流。

标准研发厂房区
- 街区尺度建筑盒子:场地南侧由12栋街区尺度的建筑盒子组成,相互错动,界面丰富。建筑盒子围绕近人尺度的庭院展开,营造街区尺度,保证彼此开阔景观视野。
- 货运流线优化:内部货运流线设计高效合理,确保生产运输顺畅,同时不影响办公区域的宁静。

项目意义与产业定位
作为奉贤区“美丽大健康、绿色新能源、通用新材料、数智新装备”四大主导产业的重要载体,上海交大国家大学科技园(南桥园区)依托上海交通大学等大院大所的科技研发实力,重点引进高端制造业、大健康领域及生产 性 服务业等战略性新兴产业。其“4+N”现代化产业体系与张江形成差异化协同发展,助力奉贤新城构建独立节点性城市,推动产城融合深度发展。

总结
上海交大国家大学科技园(南桥园区)通过创新的设计策略,在高密度用地条件下成功实现了功能复合、空间开放与生态融合。其“空间互渗”与“功能共生”的理念不仅提升了园区的空间品质和使用效率,也为奉贤新城的产业升级和城市更新提供了典范。随着2025年的建成投用,该园区将成为奉贤乃至上海南部重要的科技创新策源地和产业孵化基地,为区域经济发展注入强劲动力。
如何不发帖就快速得到金币道行
 
在线姜谷粉丝

UID: 1569053

精华: 2
级别: 玉清道君

发帖
162505
金币
442626
道行
20030
原创
766
奖券
311
斑龄
0
道券
30
获奖
0
座驾
设备
摄影级
在线时间: 19616(小时)
注册时间: 2012-06-21
最后登录: 2025-11-08
只看该作者 板凳  发表于: 2小时前
关于上海交大国家大学科技园(南桥)与MUDO Architects及帝奥栖合设计事务所的合作项目,综合公开信息整理如下:

一、上海交大科技园南桥园区概况
区位与规模
位于上海市奉贤区奉浦大道1599号,总占地面积约11.7万平方米,规划总建筑面积30万平方米(2017年全面建成)。现建成面积5万平方米,含1-3号楼四层标准厂房。
空间设计特色
厂房一层层高8.5米,二至四层层高5米,支持灵活分割出租;
绿证资质完备,可办理各类产业许可证;
园区电力容量1250KVA,满足高负荷研发与生产需求。
功能定位
由上海交通大学、奉贤区政府与上科集团共建,聚焦智能制造、产学研融合与科技企业孵化,打造区域创新引擎。
二、MUDO Architects与帝奥栖合设计事务所的角色
设计方背景
帝奥栖合:隶属帝奥设计集团,2019年成立于上海,专注建筑设计与城市规划,擅长现代技术融合文化元素的创新表达。
MUDO Architects:国际新锐事务所,主张平衡艺术性、社会性与功能性,与帝奥栖合在多地项目中深度协同。
合作设计亮点(参考双方其他项目推导)
风貌适应性改造:如上海番禺路586号“晶大厦”改造项目,通过红砖陶土立面、错动窗体与开放式露台,协调历史街区与现代需求;
生态交互空间:重庆D10天际项目引入“X景观空间”概念,奇偶层错位悬挑花园,强化自然与居所的渗透性;
科技感立面语言:单元式幕墙组件与流线型咬合结构,塑造动态建筑形态(例:铝板横向延展与竖向转折)。
三、项目协同价值
南桥园区作为交大科创资源与区域经济结合的载体,设计可能延续以下理念

产业与人文融合:延续哥伦比亚生活圈改造中对文脉的追溯,平衡科技园的效率与人文归属感;
弹性空间设计:借鉴分层高差与可变隔断,适配企业从孵化到规模化的成长需求;
绿色技术集成:如晶大厦项目采用的负离子涂料、节能幕墙等可持续技术,契合科技园低碳目标。
如何不发帖就快速得到金币道行
 
我有我可以
快速回复
限120 字节
认真回复加分,灌水扣分~
 
上一个 下一个